THE PROCESS

Review the 3 steps to our process below

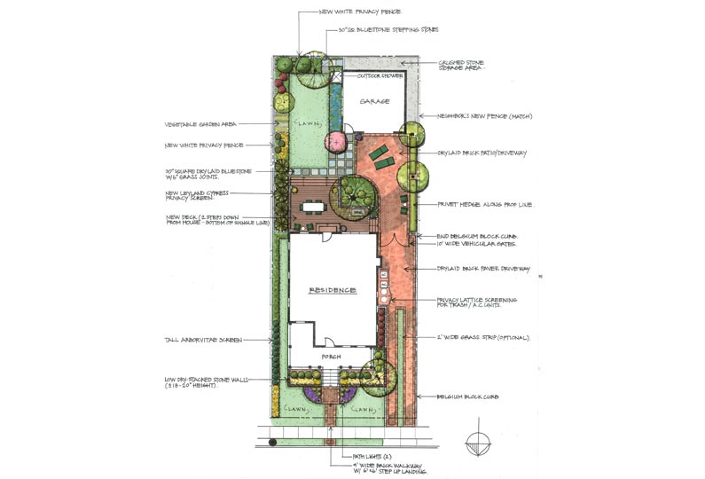
CONCEPTUAL MASTERPLANS

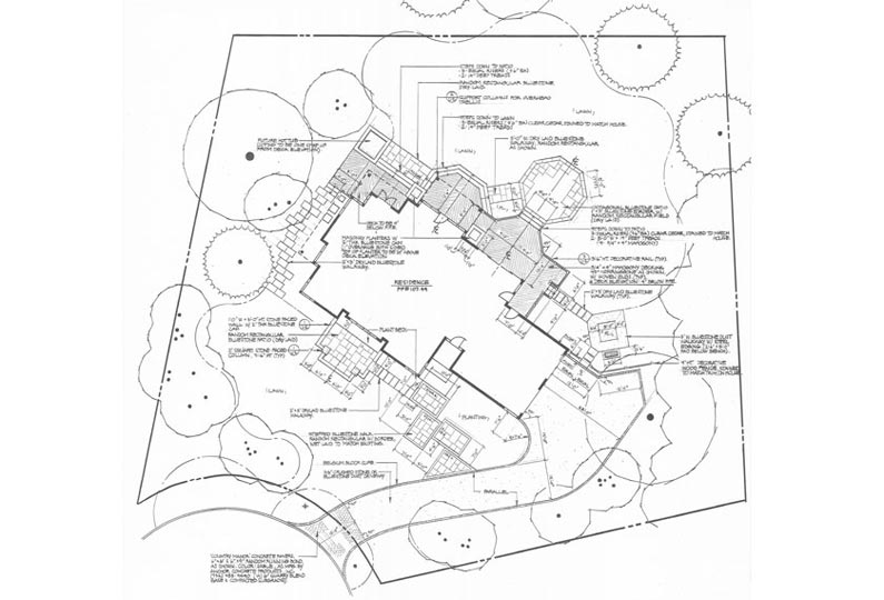
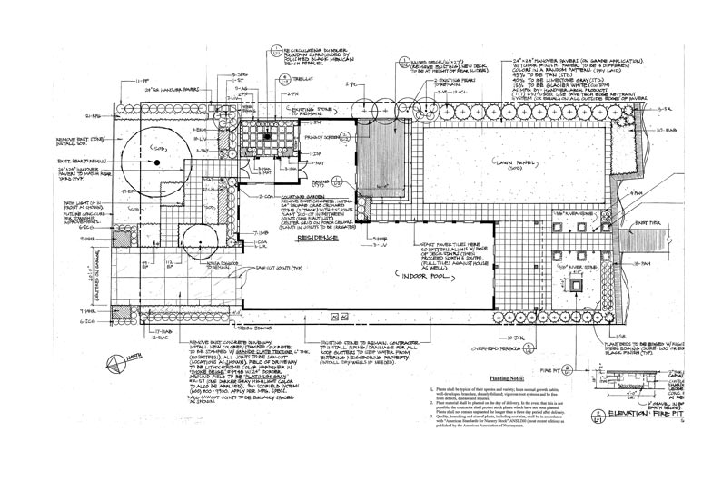
During the initial consultation, we meet with our clients to discuss the scope of the project. At this time, clients should have an idea of their “wish list”-all the elements they want to incorporate into their Conceptual Masterplan. Each Masterplan is unique, designed to reflect the client’s taste and lifestyle, as well as to complement the architectural style of the home.

This color rendered Conceptual Masterplan serves as a framework for the property and the design can be implemented in phases if desired. A plan is important for clients who wish to ‘do it right from the start’ so costly mistakes are avoided. With real estate costs at a premium, it’s also important to have a plan that maximizes the property to its fullest potential.

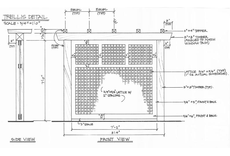
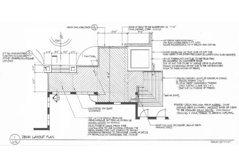
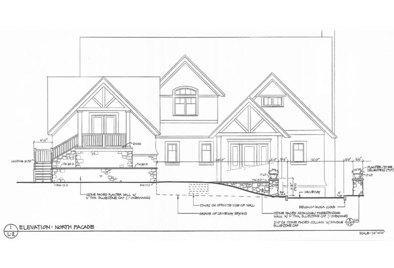
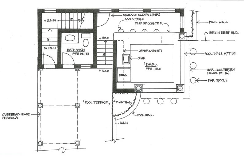
CONSTRUCTION DRAWINGS

Once the Conceptual Masterplan is finalized and approved by the clients, the second phase of the design process is Construction Drawings. These drawings, similar to architect’s blueprints, documents the work to be done by contractors using drawings, technical details, notes and specifications. These plans include construction layout & dimensioning, grading design, construction details, material selection, lighting plans and planting plans. The completed set of drawings can then be submitted to contractors for bidding purposes.

PROJECT MANAGEMENT

To ensure that the project is built to the standards specified in the Construction Drawings, Beech Design Group can assist the clients during the bidding and construction phases. We can review bids submitted by contractors as well as oversee the construction and planting of the project. In addition, we can also select plant material at the nursery before it arrives at the site. This is usually done for key specimen trees that are important to the design.

PROJECT MANAGEMENT

To ensure that the project is built to the standards specified in the Construction Drawings, Beech Design Group can assist the clients during the bidding and construction phases. We can review bids submitted by contractors as well as oversee the construction and planting of the project. In addition, we can also select plant material at the nursery before it arrives at the site. This is usually done for key specimen trees that are important to the design.